Prodej pozemku pro bydlení, 1470 m2, Chrustenice

Typ nemovitosti Pozemky
Městská část
Ulice
Druh objektu
Město Chrustenice
Cena 10 800 000 czk / nemovitost
Kontakt
Schuma Otakar
otakar.schuma@re-max.cz
+420 777 051 051
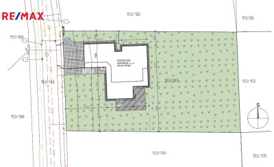
Ve výhradním zastoupení majitele nabízíme mírně svažitý pozemek o výměře 1470 m2 s rozestavěnou zděnou vilou (s platným stavebním povolením a projektovou dokumentací) o celkové užitné ploše 282 m2, který se nachází v obci Chrustenice na velmi atraktivním klidném místě s nádherným výhledem na okolní přírodu.

Rodinný dům 6+kk/T má dvě nadzemní podlaží a jeho vnitřní obytná plocha bude 282 m2 + terasa 111 m2 + zastřešené parkovací stání 38 m2.
K pozemku je přivedena elektřina, vodovod a plyn. Odpad je řešen v lokalitě vlastními čističkami. Kanalizace je ve vedlejší ulici.

Nemovitost je v tiché slepé ulici s krásným výhledem do údolí a na Křivoklátské lesy, a přitom v dosahu města. V okolí domu jsou pouze rezidenční vily. Obec Chrustenice je vzdálena 10 km od Prahy a 5 km od Berouna.
 

© 2017 Search Real Estate s.r.o

Webdesign by Lewest.cz

Napište nám